Projet Petit Chambord

Rénovation d’une Maison de 147 m²
à Bourg-la-Reine

Propositions d’Agencement et Aménagement pour le 1er Étage et Rez de Jardin d’une Maison de 147 m².

Besoins:

Rez de Jardin

Entrée: Ajouter du rangement

Cuisine: Optimisation d’agencement & aménagement pour la zone cuisine
Réflexion sur zone buanderie

Salon: Optimisation d'aménagement pour le salon
Espace lecture
Espace piano
Bibliothèque

Salle à manger:Réflexion sur une salle à manger plus conviviale

Plan d'agencement maison RDC
Proposition technique plan agencement
Proposition plan mobilier RDC
Ile de France - proposition agencement
Proposition aménagement - Ile de France

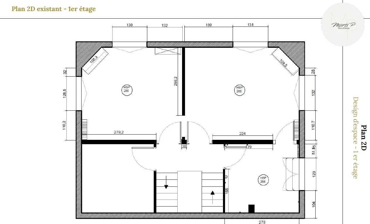
1er étage

Suite parentale:Optimisation d’aménagement de la chambre

Salle de bain: Optimisation d’agencement & aménagement
Avoir une grande douche

Chambre amis: Convertir la chambre d’amis en dressing
Avoir un espace bureau

1er etage plan existant - plan 2D
Précédent
Précédent

Emma Roberts’ Grown-Up Dollhouse

Suivant
Suivant

Projet Villa Monceau